Rodinné domy

Dvoupodlažní dům na Pardubicku

Architektonické ztvárnění tohoto domu odpovídá parametrům moderní rodinné zástavby poslední doby. Dominantním prvkem stavby je otevřený obývací prostor a mírně zapuštěný vstup do objektu v kombinaci s ocelovými sloupky podporujícími stropy. Kryté parkovací stání je situováno odděleně. Hmota hlavního objektu se sedlovou střechou je vizuálně potlačena moderní přístavbou. Dalšími výraznými prvky jsou velké prosklené plochy do obytných prostor domu. Kryté parkovací stání je vizuálně sjednoceno využitím totožných ocelových sloupků a fasádního obkladu.

Rodinný dům na okraji Prahy

Atraktivní tvar zaujme milovníky originálních řešení. Jedná se o mimořádně funkční a zajímavě řešenou stavbu. Koncept domu je založen na dialogu architekta a investora. Dům je navržen jako dvoupodlažní konstrukce. Je ideální pro lidi, kteří oceňují pohodlí a originalitu. V prvním patře tohoto domu je nespornou výhodou velká terasa, která je přístupná z ložnice.

První patro domu skrývá dokonale naplánované pokoje, kde díky velkým oknům, která jsou zde navržena, je zajištěno maximální prosvětlení interiéru a optické zvětšení prostoru, čímž se členům domácnosti otevře panorama krásné zahrady s bazénem.

Na terasách a v okolí bazénu je podlaha z dřevěného exotického dřeva – listnatý brazilský jasan s vysokou trvanlivostí. Byla to pro nás velice zajímavá realizace.

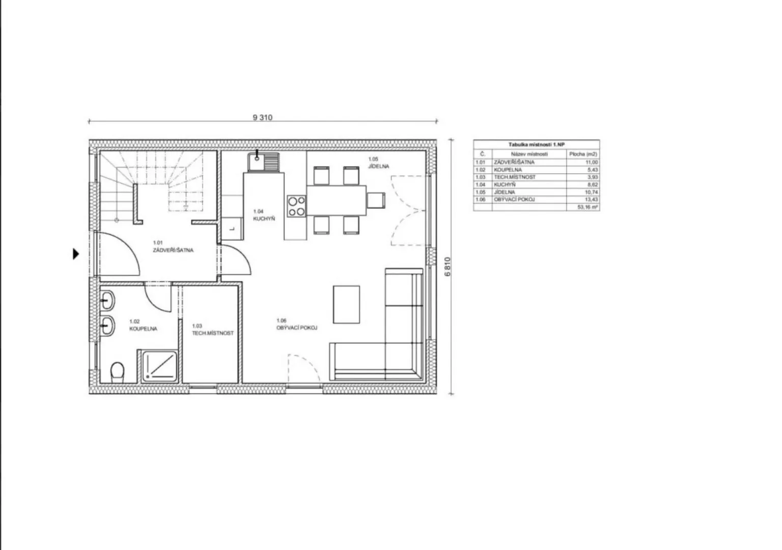
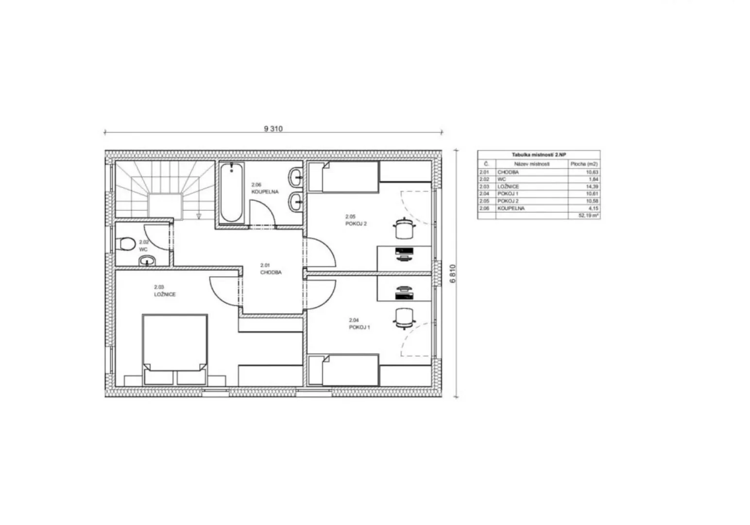
Dvoupodlažní dům Vysoká nad Labem

Dvoupodlažní dům se zastavěnou plochou 58,50m2, dispozičně pak jako 4kk s celkovou užitnou plochou 105,35m2. Lze realizovat jako samostatný, ale i řadový dům.

Půdorys domu je obdélníkový. Zastřešení je řešeno pultovou střechou bez přesahu přes obvodové stěny. Rodinný dům je navržen jako nepodsklepený, jednogenerační s jednou bytovou jednotkou. Vstup do domu vede do místnosti zádveří. Vpravo se vchází do koupelny spojené s technickou místností. Ze zádveří je přístupné schodiště s výstupem do 2. NP, pod nímž se nachází prostor využívaný jako šatna. Rovně se vchází do hlavní obytné místnosti, která zahrnuje obývací pokoj, jídelnu a kuchyň s výstupem na terasu. Ve 2. NP se nachází chodba, ložnice, dva dětské pokoje, samostatné WC a koupelna.

Bungalov Vysoká nad Labem

Architektonického řešení stavby zohledňuje umístění stavby v daném prostředí a architektonické začlenění do okolní zástavby. Vznikl nový rodinný dům, který je koncipován jako jednopodlažní bungalov bez obytného podkroví. Půdorys domu je obdélníkového půdorysu s max. vnějšími rozměry 8,92x14,67m. Zastřešení je řešeno sedlovou střechou bez přesahu přes obvodové stěny. Vnitřní dispozice domu: zádveří, technická místnost, WC, centrální chodba s přístupem do dvou pokojů, ložnice, koupelny a na pochozí úložnou půdu. Dále se zde nachází pracovna, která je propojená s kuchyní a jídelním koutem. Přilehlá pergola je navržena z dřevěné konstrukce, založena na základových pasech. Dům stojí na mírně svažitém pozemku.

Rodinný dům na Jičínsku

Rodinný dům je situován v klidné ulici na okraji obce. Jedná se o novostavbu přízemního rodinného domu se šikmou sedlovou střechou a nevyužívaným podkrovím, půdorysně ve tvaru „L“, obě křídla se světlým rozponem 6,0 m. Výhodou je jednoduchá, přehledná dispozice domu s pracovnou, ložnicí, pokojem, hlavní obytnou místností s jídelním koutem a kuchyní, dále zde mají majitelé domu dvě koupelny, halu a technickou místnost, samostatné WC, komoru a šatnu. V obývacím pokoji je dominantou krb a terasa, která umožňuje propojení domu a zahrady. Dům se zapojil do tradiční venkovské zástavby. Investor měl jasnou představu o tom, jak by měl jeho dům vypadat.

Rodinný dům ve Stěžírkách

Dvoupodlažní dům s plochou střechou obdélníkového tvaru, velkou terasou, která nabízí atraktivní místo na slunci i ve stínu propojená se zahradou a bazénem. K domu vcházíme přístřeškem dvougaráže se zelenou střechou. Dispoziční řešení tohoto domu je efektivní a zároveň velkorysé. V přízemí se nachází prostorný obývací pokoj, jídelní a kuchyňský kout, technická místnost se sprchovým koutem a WC. Schodiště se diskrétně uhnízdilo do středu domu, takže v horním patře je dostatek místa pro tři pokoje se vstupem na balkón, koupelnu s vanou a samostatným WC. Hlavní ložnice je obzvláště příjemná díky velké šatně. Dům má směrem do ulice velká okna, kterým se majitelé mohou nerušeně kochat výhledem.

Rodinný dům na Královéhradecku

"Doma"... - pocit, který tento dům vyjadřuje ve všech svých aspektech. Ve zdařilém architektonickém řešení a v promyšlené funkčnosti půdorysu, který reaguje na výhledy, soukromí a prostorové potřeby majitelů domu. Navenek dominuje moderní, jednoduchý designový styl, uvnitř emocionální zážitek z bydlení.

Rodinný dům je obdélníkového tvaru. Má jedno nadzemní podlaží a obytné podkroví. Vstup do domu je přibližně v polovině délky objektu. Zádveří umožňuje vstup do středové chodby, odkud je přístup do všech dalších částí domu. Hlavní místností 1.NP je společný obytný prostor orientovaný do zahrady, spojující obývací pokoj, jídelnu a kuchyni v souladu s moderními trendy bydlení. Vstup do 2.NP je po dvouramenném schodišti na středovou chodbu, odkud je přístup do všech místností. Dům je navržený tak, aby se majitelé cítili co nejpohodlněji.

Roudnice nad Labem

Starý dům na Královéhradecku potřeboval rekonstrukci 

Přestavba rodinného domu, zasazeného daleko od okolních příbytků v blízkosti hlavní silnice, v sobě nesla jedinečný příběh o tom, jak zde původní majitelé žili. Starý dům musel projít kompletní rekonstrukcí v roce 2021, od zdí a střechy až po rozvody a interiéry. Nová střecha, okna, stropy, podlahy, příčky a izolace daly domu novou tvář. Základní dispoziční řešení zůstalo zachováno – obývací prostory, koupelny, hala a kamenné schodiště do patra. Přibyly krásná tradiční kachlová kamna, která evokují nostalgii a rustikální kouzlo. To podtrhuje  i nová italská dlažba v prostorách celého přízemí.  V podkroví vzniklo obytné patro s ložnicemi. Součástí každé ložnice je prostorná šatna.

K objektu přísluší prostorná zahrada. Pomyslnou hradbu kolem něj vytváří směs různých dřevin, keřů a rostlin bez zjevné organizace, které rostou křížem krážem přes sebe a vytvářejí tak hustou bariéru před okolím.

Rekonstrukce v obci Kovač

Přeměna stodoly v komfortní bydlení: Dům se šikmou sedlovou střechou a využívaným podkrovím.

Cílem rekonstrukce bylo přinést novým majitelům komfortní bydlení a zároveň zachovat původní venkovské rysy objektu s ohledem na prostředí, v němž se nachází. Stará stavba stodoly stála na rozsáhlém pozemku a stala se jakýmsi sarkofágem pro nový dům. Stodola se dočkala rekonstrukce, kdy byla hlavním cílem přeměna starého objektu na nový dům. Ten se co nejvíce přizpůsobil dnešním požadavkům na bydlení a hospodářská budova se přeměnila ve společenský prostor, který se přes terasu napojuje na rozsáhlou zahradu.

Výhodou domu je jednoduchá a přehledná dispozice. V přízemí po vstupu do zádveří vstoupíme po levé straně do prostorné garáže se skladovacím prostorem a prádelnou. V obytné části přízemí se nachází pracovna, koupelna, samostatné WC, kuchyň s jídelním koutem a hlavní obytná místnost s dominantním krbem a vstupem na terasu, která umožňuje propojení domu a zahrady. Přízemí je s podkrovím propojeno schodištěm z masivního dřeva. V prvním patře se nacházejí dva pokoje, ložnice, koupelna a prostorná odpočinková místnost.

Dům se zapojil do tradiční venkovské zástavby. Investor měl jasnou představu o tom, jak by měl jeho dům vypadat.

Rezidenční vila Praha 6

Rekonstrukce vily v Dejvicích 

Krásnou, nenápadnou, o to zajímavější vilu s rozlehlou zahradou z období první republiky najdeme zasazenou v srdci Dejvic v luxusní vilové čtvrti Hanspaulka, kde svůj domov našel i slavný komik Vlasta Burian, jehož vila sousedí hned opodál, nebo i herečka Lída Bárová.

S respektem k historického odkazu a originální architektuře zajistila naše firma šetrnou sanaci vlhkých zdí vnějších i vnitřních sklepních prostorů.

Rekonstrukce v obci Čermná

… a výsledek stojí za to

Rozsáhlá a náročná rekonstrukce nemovitosti společně s krásným pozemkem a koupacím jezírkem byla výzvou.

Proměna staré zemědělské usedlosti v obci Čermná trvala více než dva roky. Cílem bylo vrátit domu jeho původní ráz a přizpůsobit ho modernějšímu stylu bydlení. Základní tvar domu byl zachován. Samotná rekonstrukce začala v roce 2011 obnažením obvodu domu a zakončena koupacím jezírkem v zahradě roku 2013. Součástí rekonstrukce bylo i využití podkroví a hambálek jako druhou obytnou zónu.

Rekonstrukce znamenala i nemalé terénní úpravy kolem domu, obnovení střešní konstrukce a krytin. Stávající nevhodná velká trojdílná okna byla vyměněna na původní dvoudílná špaletová. Dva nevyhovující přístavky při obou delších stranách domu byly na stávajících základech znovu vyzděny a zakryty rovněž sedlovými střechami.

Fasáda: štít – dřevěný obklad a kamenný obklad z přírodního křemence v přírodních hnědých, béžových a červených odstínech, omítka světlé přírodní barvy

Střešní krytina: Prefa falcovaná hliníková šablona, barva antracit

Srdce domova majitelů tvoří centrální obytná místnost s klenutým stropem z původních cihel zasazených do ocelových traverz. Ale hlavním klenotem této místnosti jsou červená kachlová kamna. Ty jsou prostě dech beroucí.

V celém domě je podlaha řešena z masivního dubu, pouze v kuchyni se nachází keramická dlažba s povrchovou imitací dřeva, což působí harmonicky. Dalším charakteristickým prvkem místnosti jsou špaletová okna a také hloubka jejich parapetu, která umocňuje výhled do zeleně.

Dům je členěn tak, aby mohlo být přízemí i podkroví využíváno nezávisle na sobě.

Okolí domu zůstalo neoplocené, a tak přímo navazuje na okolní louky a les.

Dům na Pardubicku – rekonstrukce střechy

Po nějakém čase jsme pokračovaly v pracích u nedávno zrekonstruovaného domu na Pardubicku, kde nás tentokrát čekala obměna střešní krytiny, nový nátěr fasády a inovace terasových prken u bazénu. Při opravách a rekonstrukcích klade naše firma důraz na kvalitu provedených prací a vždy projednáváme s investorem navrhovaná řešení, přičemž bereme v úvahu jeho potřeby a rozpočet.

Plán obnovy zahrnoval výměnu staré střešní krytiny za moderní Bramac Tegalit a instalaci nového střešního okna s oplechováním. Následoval nový nátěr fasády, který dodal domu svěží vzhled. Práce jsme završily výměnou terasových prken a renovací schodiště vedoucího ze zahrady do domu. Schodiště nyní ladí s terasou a přispívá k celkovému čistému a sladěnému dojmu. Rekonstrukce nejen zvýšila praktičnost domu, ale dodala mu i moderní šmrnc.

Načítám